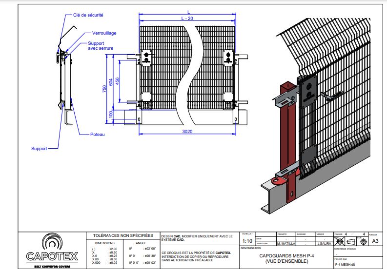
Protection latérale pour convoyeur

Grille métallique de protection latérale de la bande de chargement du convoyeur avec clé spéciale (P4)

Caractéristiques :

  • Ils veillent à la cohérence et à la conformité des règlements.
  • La solution innovante et personnalisée garantit une installation correcte.
  • Clé permettant de verrouiller et de déverrouiller le système pour faciliter l’installation.
  • Conçu pour un démontage rapide et facile.

Matériaux :

  • Galvanisé à chaud.
  • Acier inoxydable 304.
  • Acier inoxydable 316.

Caractéristiques techniques :

  • Longueur en sections maximales jusqu’à 3 mètres.
  • Hauteur jusqu’à 0,8 mètre.
  • Poids du système 7,2 kg/mètre.