Protecciones laterales de Cintas Transportadoras

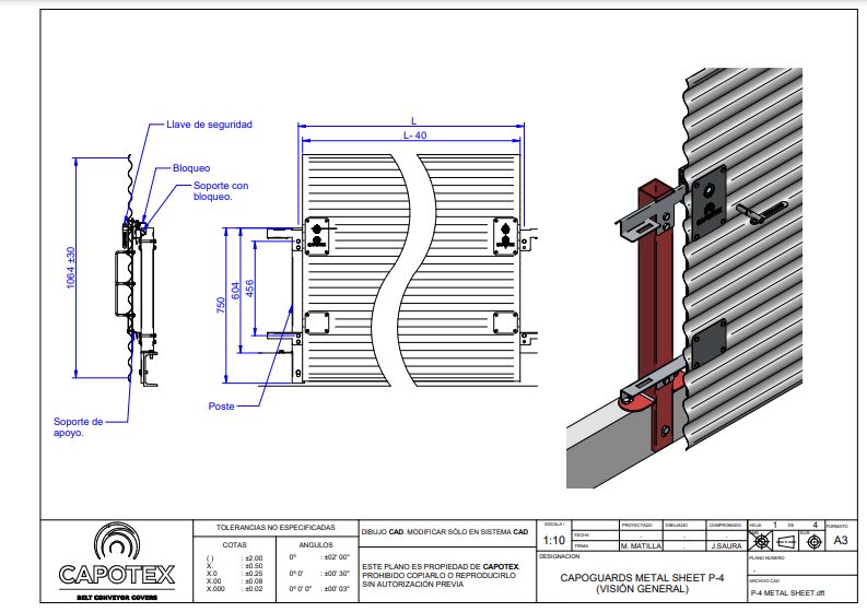
Protector de chapa de la cinta transportadora de carga con llave especial (P4)

Características:

  • Garantizan la coherencia y el cumplimiento de la normativa.
  • Garantizan una instalación correcta gracias a la innovación de sus soluciones personalizadas.
  • Llave para bloquear y desbloquear el sistema para facilitar la instalación.
  • Diseñado para un desmontaje rápido y sencillo.

Materiales:

  • ZM 300-310
  • Acero galvanizado
  • Acero prelacado
  • HPS 200 Acero de alto rendimiento
  • Acero inoxidable 304
  • Acero inoxidable 316
  • Poliéster reforzado con fibra
  • Aluminio

Especificaciones técnicas:

  • Longitud en tramos máximos de hasta 3 metros.
  • Altura hasta 0,8 metros.
  • Peso del sistema 10 kg / metro.